RBC - Radio Block Center - ERTMS/ETCS L2/L3

The RBC9 system is the ECM™ solution for ERTMS Level 2/Level 3 signaling, with the highest level of safety (SIL4), compliant with Baseline 3 Release 2 of ERTMS/ETCS specifications (UNISIG SRS 3.6.0) and with the high reliability and modularity,

RBC9 Radio Block Center ERTMS
RBC9 Radio Block Center ERTMS

RBC - ERTMS/ETCS L2/L3

Radio Block Center

OVERVIEW

The RBC9 system is the ECM™ solution for ERTMS Level 2/Level 3 signaling, with the highest level of safety (SIL4), compliant with Baseline 3 Release 2 of ERTMS/ETCS specifications (UNISIG SRS 3.6.0) and with the high reliability and modularity.

RBC9 allows the safe and continuous control of trains, allowing high speed operation and minimum distancing between trains. 

RBC9 receives position reports from trains and communicates with interlocking to issue safety related information (movement authorities) to train via the GSM-R infrastructure.

RBC9 is able to handle 200 trains and 200 km of line including several stations. 

COMPONENTS

RBC9 fits into context of ECM signalling products. Anyway it could communicate with any interlocking system using the protocol defined in UNISIG Subset-098 or a national communication protocol.

of

RBC9 offers a complete solution for ERTMS Level 2/Level 3 operation, by means of the following components:

RBC9 Central Unit (RCU): “2 out of 2” SIL 4 Safety Achitecture 

Train Communication Subsystem (CC9): industrial solution customized by ECM for GSM-R/ISDN or TCP/IP (UNISIG SUBSET 037) communication management

Event recorder (RCE): recording system logging all radio messages, Movement Authorities and operator commands 

Diagnostic system: local and remote diagnostic (via web) are both supported

CDS: operator interface with an high grade of customization capability 

of

RCU - RBC9 CENTRAL UNIT

“2 out of 2” SIL 4 Safety Achitecture

The generic product guarantees the interoperability according to UNISIG specifications. The generic application guarantees the safety of the movement authorities and it is based on C language. The configuration is user friendly and integrated with ECM CBI (computer based interlocking) configuration tools. The RCU inherits the ECM CBI platform with its characteristics: safety, reliability and modularity. 

of

CABINET WALK-THROUGH

It is possible to deploy different hardware solutions depending on space, redundancy and geographical needs.

For RBC application you need at least: 

RCU x 2

CDS x 1 

CC9 x 1

RCE x 1 (the software function could be added to the CDS9 machine) 

of
of
of
of
of

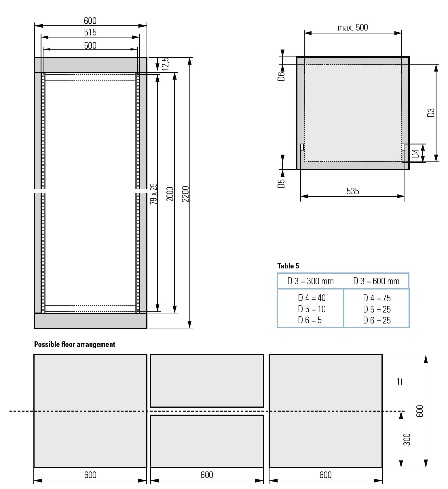
CENTRAL POST CABINET DIMENSIONS

of
of
of
of
of

CONTACT SALES

HEADQUARTERS

Progress Rail Signaling S.p.A.
Via IV Novembre 29
51034, Serravalle Pistoiese
Pistoia, Italy
Partita IVA 00089860472
Tel. +39 0573·1916301
amministrazione@progressrail.com

EMAIL SALES
 
GENOA OFFICE

Calata Cattaneo, 15
Edificio Millo,
16128, Genova
Italy

ROME OFFICE

Via Volturno 58
00185, Roma
Italy

BOLOGNA OFFICE

Via IV Novembre 2
40061, Bologna
Italy

DEUTSCHLAND OFFICE

Carl-Benz-Str. 1
68167 Mannheim
Deutschland